予約可
戸建て
橋賀台モデルハウス
No.01
橋賀台モデルハウス
まるで新築!築30年の物件をフルリノベーション
POINTこの物件のおすすめポイント
-
POINT01
居心地のいい空間、楽しい時間
築天井からの照明は最小限に。様々な高さからの優しい光が溢れる多灯照明を採用し、海外インテリアのような雰囲気のあるリラックス空間を演出してくれます。
-
POINT02
リノベーションだからこそお家の顔である玄関からイメージチェンジ
フルリノベーションだからこそできる玄関まわりの会談も一新し、見た目もリフレッシュしました。
-
POINT03
水まわりも内装も一新!気分もリフレッシュ
見た目も機能も新しく生まれ変わった空間で、毎日の暮らしがぐっと快適に。まるで気分までリフレッシュできるような仕上がりとなりました。
-
POINT04
シューズクロークの新設で家族分+αの収納を!
収納だった部分を間取り変更してシューズクロークに。部屋側はクローゼットにかわり、収納力アップ。
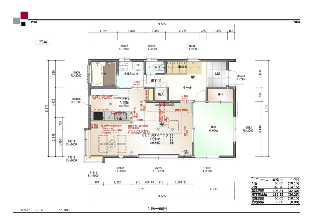
DETAIL物件詳細
| 所在地 | 千葉県成田市橋賀台1-22-4 |
|---|---|
| 間取り | 4LDK |
| 築年数 | 30年 |
| 竣工年月 | 2025年10月 |
| 専有面積 | 36坪㎡ |
| 工事費 | - |


























